Holiday Resorts - St Andrews STYLE

Efficient Layout, Timeless Design

THIS TYPE OF HOUSE IS SUITABLE FOR PRIVATE RECREATIONAL USE OR AS AN INDEPENDENT MOBILE LIVING SPACE. IT CAN ALSO BE ADAPTED AS A MODULAR UNIT FOR RENTAL PROPERTIES, ESPECIALLY IN VACATION RESORTS. MULTIPLE UNITS CAN BE DELIVERED AND INSTALLED IN A SHORT TIME, TRANSFORMING EMPTY PLOTS INTO FUNCTIONAL HOUSING COMPLEXES.

ANOTHER APPLICATION INCLUDES CONVERTING THE UNIT INTO A MOBILE OFFICE. CUSTOM EXTERIOR AND INTERIOR SOLUTIONS ARE AVAILABLE DEPENDING ON INTENDED USE.

Efficient Living in a Compact Design.

INSULATION INCLUDES 15 CM OF MINERAL WOOL IN THE ROOF, 20 CM IN THE FLOOR, AND 10 CM IN THE WALLS.

OPTIONAL UNDERFLOOR PIPE INSULATION HELPS PROTECT PLUMBING FROM FREEZING IN COLDER TEMPERATURES.

COVERED WITH HEAT-WELDABLE ROOFING MEMBRANE.

technical specification

Building characteristics

  • Wooden frame structure

  • Single-storey design (bungalow type)

  • Suitable for a family of four

  • Optional open terrace available (not included in base price)

  • Delivered fully assembled, including finished bathroom and kitchen

  • Not anchored to the ground

  • Customisable facade, interior finish, and room layout available

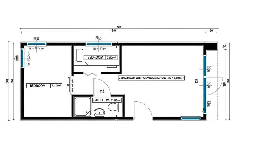
floor plan

pricing and options

The cost of the house and equipment is determined on a case-by-case basis. There is no vat on this property.

Available Equipment Options (Extra fee)

  • 30L or 50L electric boiler

  • 2 kW electric fireplace

  • Standard or built-in refrigerator

  • Built-in dishwasher

  • Ventilation hood

  • Electric, induction, or gas cooktop (with full system)

  • Compact kitchenette

  • Central gas heating with furnace

  • 32" TV

  • Oven

  • Standard or energy-efficient electric heater

  • Bathroom electric heater

  • External stairs

  • Gas water heater

ENCLOSED, YOU WILL FIND THE DETAILED TECHNICAL SPECIFICATIONS OF THE st andrews STYLE HOME. SHOULD YOU HAVE ANY QUESTIONS, WE ARE AT YOUR DISPOSAL. WE WOULD BE HAPPY TO PREPARE AN INDIVIDUALISED OFFER TAILORED TO YOUR NEEDS.

WE INVITE YOU TO CONTACT US AND VISIT OUR WEBSITE TO LEARN MORE ABOUT st andrews style AND OTHER PROJECTS.

Previous
Previous

Dutch Mobile Home - Dunbar Style