Dutch Mobile Home - ARbroath Style II

Smart Mobile Homes for Flexible Living

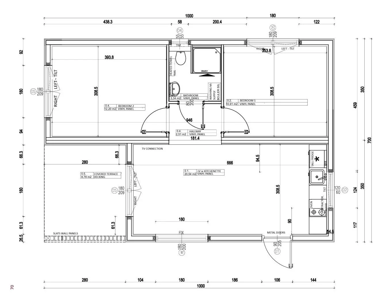
The ARbroath Style iI: is a spacious, modern mobile home offering 49.5 m² of functional living space, thoughtfully arranged into a bright living room with kitchenette, a comfortable bathroom, two private bedrooms, and an additional mezzanine level. Built in durable timber frame technology and insulated for all season performance, it combines mobility with the comfort of a permanent home.

combining comfort, functionality and timeless design

Thanks to excellent thermal insulation, The ARbroath Style Ii house ensures warmth and coziness, even on the coldest days. It is ready for occupancy right after installation, with the option for complete furnishings and insulation, making it a perfect living space year-round.

technical specification

Building characteristics

  • The building features a timber frame construction and timber truss chassis

  • It ia a bungalow Dutch-style home with a mezzanine, designed for A family of 2-4 people.

  • The layout includes two bedrooms plus a mezzanine, A living room with a kitchenette and a bathroom.

floor plan

specificationS

pricing and options

from £139,000

STANDARD

LIVING ROOM:

  • Vinyl flooring throughout

  • Painted wooden wall cladding

  • Mezzanine with fixed wooden ladder and horizontal railing

  • Bleached wooden interior doors

additional options (extra fee):

Kitchen Options:

  • Electric or induction hobs

  • Oven

  • Fridges (standard, built‑in, large built‑in)

  • Built‑in dishwasher

  • Small, medium, or large kitchenette

  • Custom kitchen design available

Living Room:

  • 40" Smart TV

  • Sofa

  • Dining table with 4 chairs

  • TV cabinet

  • Decorative wall slats

Bathroom:

  • Corian countertop with vessel sink

  • Premium Berry Alloc wall panels

  • Electric ladder radiator

  • 50 L electric boiler

  • 100 cm shower upgrade

  • Washing machine with connection

Bedrooms

  • Single, double, or bunk beds with mattresses

  • Wardrobe up to 140 cm

  • Bedside cabinets

  • Over‑bed wall cabinets

  • Mezzanine mattress

Heating & Climate

  • Standard or energy‑saving electric radiators

  • Air conditioning with heating function (down to –15°C)

  • Underfloor heating mats

  • Additional insulation layers (walls/roof)

Windows & Doors

  • Steel entrance door

  • Double‑leaf entrance door (160 cm)

  • Roof window

  • Triangular gable window

  • Terrace doors (PSK, Smart‑Slide, HST)

  • Anti‑burglary roller shutters

Exterior Options

  • Kerafront, Vinylit, Rockpanel cladding

  • Openwork slat façade

  • Non‑planed boards

  • Terrace flooring

  • Wooden or aluminium pergolas

  • Gable overhang

Connections & Electrical Add‑ons

  • Extra exterior lighting

  • Additional electrical points

  • Internet cable

  • TV connection

  • Plumbing connections for appliances

OTHER UPGRADES:

  • House wrapping for transport

  • Moisture-resistant wall – premium

  • 160 cm mattress for mezzanine

  • Air conditioning with installation

  • Facade, VOX siding – instead of metal panel

  • Double entry door – 160 cm

  • Covering paint for doors

  • Covering paint for ladder and railings

  • Additional electrical point

ENCLOSED, YOU WILL FIND THE DETAILED TECHNICAL SPECIFICATIONS OF THE ARbroath Style Ii HOME. SHOULD YOU HAVE ANY QUESTIONS, WE ARE AT YOUR DISPOSAL. WE WOULD BE HAPPY TO PREPARE AN INDIVIDUALISED OFFER TAILORED TO YOUR NEEDS.

WE INVITE YOU TO CONTACT US AND VISIT OUR WEBSITE TO LEARN MORE ABOUT ARbroath Style II AND OTHER PROJECTS.

Previous
Previous

Dutch Mobile Home - Arbroath Style I

Next
Next

Summer House - Aviemore Style