LOCH House

the only FLOATING WOODEN HOME of it’s kind in uk

DISCOVER LOCH house

A UNIQUE HOUSE ON WATER, DESIGNED FOR LAKES, RIVERS, AND PRIVATE WATER BASINS. built with modern frame technology and natural wood finishes, this floating home combines innovation with comfort, offering a truly one-of-a-kind living or investment opPortunity.

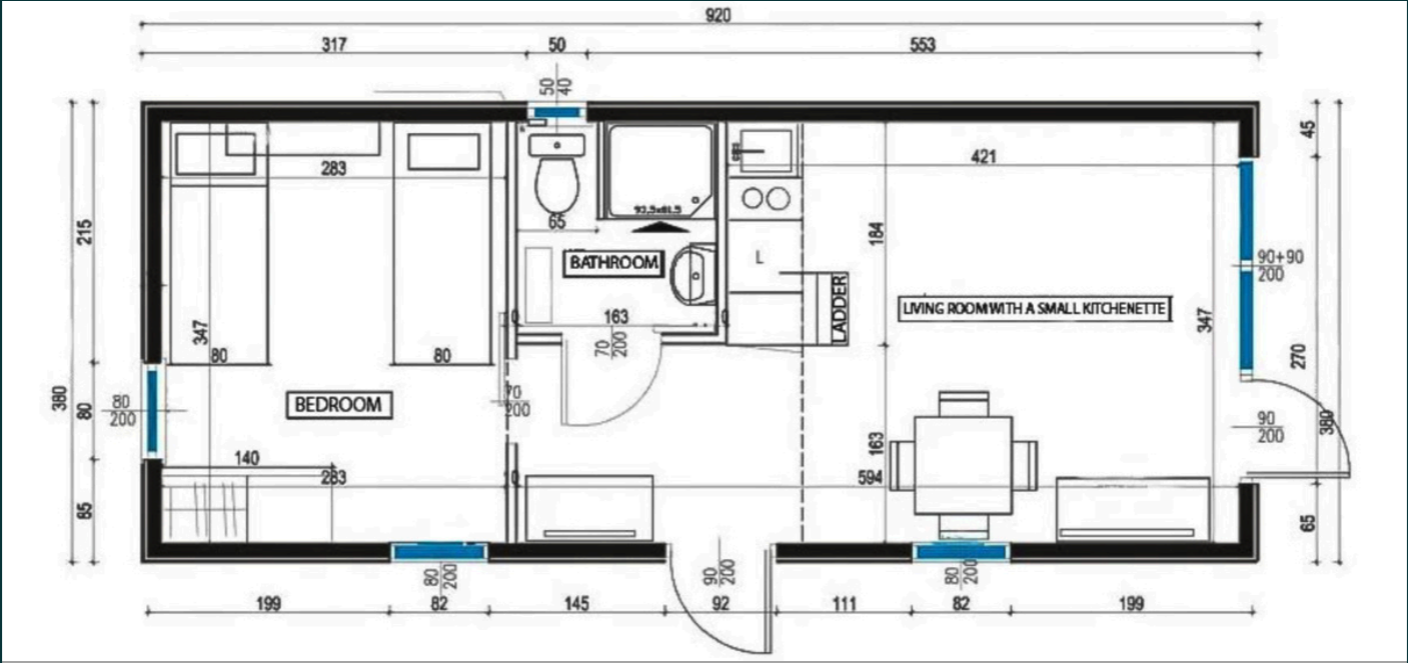
This summer cabin features a coSy living room with a kitchenette and loft, a separate bedroom, and a bathroom with a shower. It covers 35 square meters and is designed to comfortably accommodate a family of four. An open wooden terrace can be added for an additional cost.

Why Choose LOCH HOUSE?

THE BUILDING IS INSULATED WITH MINERAL WOOL: 15 CM IN THE ROOF, 20 CM IN THE FLOOR, AND 10 CM IN THE WALLS. FOR COLDER CLIMATES, OPTIONAL PIPE INSULATION IN THE FLOOR HELPS PROTECT PLUMBING FROM FREEZING. THE GABLE ROOF IS FINISHED WITH METAL ROOFING TILES.

LIKE OUR OTHER MODELS, THIS CABIN IS IDEAL NOT ONLY FOR PRIVATE RECREATIONAL USE BUT ALSO FOR RESORTS LOOKING TO EXPAND THEIR RENTAL OFFERINGS.

technical specification

Building characteristics

  • Timber-frame construction, built on a wooden truss, insulated with mineral wool (λ 0.033)

  • Modern form with a gable roof covered with standing seam metal

  • Ideal recreational home for year-round use

  • Single-story house with a mezzanine, intended for a 2-4 person family

  • Living room with a small kitchenette, bedroom, mezzanine, and a small bathroom with a monolithic shower

  • Turnkey finished home, with the possibility of furnishing and customization to individual preferences

floor plan

specificationS

pricing and options

BASE PRICE FROM £107,640

standard

LIVING ROOM:

  • Durable vinyl flooring

  • Access ladder to loft area

  • Windows as per design plan

  • Installed lighting fixtures

BEDROOM:

  • Vinyl floor finish

  • Sliding door for space-saving access

  • Loft area, finished with decorative cladding

KITCHEN:

  • Vinyl flooring

  • Optional kitchen setup

BATHROOM:

  • Walk-in shower

  • Toilet

  • Modern faucet

  • Wooden door

  • Vinyl flooring

INSTALLATIONS:

  • Plumbing system

  • Electrical setup with halogen light points

additional options (extra fee):

APPLIANCES & FEATURES:

  • 30L electric water heater

  • 50L electric water heater

  • Refrigerator

  • Built-in refrigerator

  • Built-in dishwasher

  • Kitchen extractor hood

  • Two-burner electric cooktop

  • Induction cooktop

  • Kitchenette

  • Gas central heating system with a boiler

  • 32" TV

  • Electric oven

  • Standard electric heater

  • Energy-efficient electric heater

  • Electric WC heater

  • Pipe heating system

OPTIONAL UPGRADES & EXTERIOR:

  • Karadeco Vox exterior cladding (additional cost)

  • Vertical wood cladding for the façade

  • Triangular gable window

  • Premium kitchen upgrade

FURNITURE & FURNISHINGS:

  • Bunk bed with mattresses (2x 80x200 cm)

  • Double bed with mattress (140x200 cm)

  • Bedroom wardrobe

  • Loft mattress (160 cm wide)

  • Dining table with 4 chairs

  • Convertible sofa

ENCLOSED, YOU WILL FIND THE DETAILED TECHNICAL SPECIFICATIONS OF THE LOCH HOUSE. SHOULD YOU HAVE ANY QUESTIONS, WE ARE AT YOUR DISPOSAL. WE WOULD BE HAPPY TO PREPARE AN INDIVIDUALISED OFFER TAILORED TO YOUR NEEDS.

WE INVITE YOU TO CONTACT US AND VISIT OUR WEBSITE TO LEARN MORE ABOUT loch house AND OTHER PROJECTS.

Previous
Previous

Golf Cube – Mobile Golf Simulator

Next
Next

Summer House - Aberfeldy Style