Apartment Building - skye style

Smart Mobile Homes for Flexible Living

VIEW OUR SKYE STYLE BROCHURE

WE INTRODUCE A FULLY FINISHED WOODEN HOUSE WITH A TIMBER-FRAME CONSTRUCTION, INCLUDING A FULLY EQUIPPED BATHROOM. THE HOUSE IS READY FOR IMMEDIATE USE AND COMBINES MODERN DESIGN WITH TRADITIONAL WOODEN ELEMENTS. YOU HAVE THE FLEXIBILITY TO CHOOSE THE EXTERIOR, INTERIOR FINISHES, AND ROOM LAYOUT ACCORDING TO YOUR PREFERENCES.

THE HOUSE SPANS 30-31.5 M² AND IS INSULATED WITH MINERAL WOOL (15 CM IN THE ROOF, 20 CM IN THE FLOOR, AND 10 CM IN THE WALLS), AND IS NOT FIXED TO THE GROUND.

Your Own Apartment in No Time

THIS PRODUCT IS IDEAL FOR THOSE LOOKING FOR A RELAXING SPACE FOR THEMSELVES AND THEIR FAMILIES.

ADDITIONALLY, THESE HOMES CAN BE UTILIZED AS RENTAL PROPERTIES IN HOLIDAY RESORTS, OFFERING AN EXCELLENT SOLUTION FOR VACATION CENTERS.

ANOTHER OPTION IS TO ADAPT THE HOUSE FOR USE AS A MOBILE OFFICE, ALSO NOT ANCHORED TO THE GROUND. WE CAN TAILOR THE INTERIOR DESIGN AND EQUIPMENT TO MEET YOUR SPECIFIC REQUIREMENTS.

technical specification

Building characteristics

  • Wooden building with a timber-frame construction

  • Single-story cabin

  • Designed to accommodate a family of four

  • Option to add an open terrace (price does not include terrace)

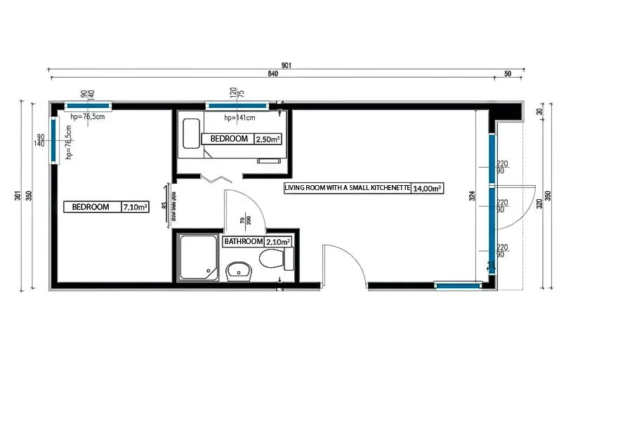
floor plan

specificationS

pricing and options

from £55,100 (no vat on this property)

additional options (extra fee):

30L electrical boiler

  • 50L electrical boiler

  • Refrigerator

  • Built-in fridge

  • Built-in dishwasher

  • Ventilation hood

  • Electrical hob

  • Induction hob

  • Gas hob + system

  • Kitchenette

  • Central gas heating with a furnace

  • 32″ TV

  • Oven

  • Normal electrical heater

  • Energy-efficient electrical heater

  • Toilet electrical heater

  • Heating of water pipes

  • Elevation of Keradeco Vox – additional payment

  • Vertical elevation board

  • Bay window with hidden gutter (PLN 1500)

  • Premium kitchen

  • A bunk bed with a 2× 80×200 mattress

  • A double bed with a 140×200 mattress

  • A wardrobe in the bedroom

  • Elevation of the horizontal board with the attic from Kerafront

  • Transport

ENCLOSED, YOU WILL FIND THE DETAILED TECHNICAL SPECIFICATIONS OF THE SKYE STYLE HOME. SHOULD YOU HAVE ANY QUESTIONS, WE ARE AT YOUR DISPOSAL. WE WOULD BE HAPPY TO PREPARE AN INDIVIDUALISED OFFER TAILORED TO YOUR NEEDS.

VIEW OUR SKYE STYLE BROCHURE

WE INVITE YOU TO CONTACT US AND VISIT OUR WEBSITE TO LEARN MORE ABOUT HIGHLANDER AND OTHER PROJECTS.

CONTACT US
Previous
Previous

Mobile house - Fort William Style

Next
Next

Dutch Mobile Home - St Abbs Style