Summer House - aBERFELDY style

A Compact Home for Getaways and Flexibility

VIEW OUR ABERFELDY STYLE BROCHURE

The Aberfeldy Style house features a wooden mobile home, Dutch-style cabin, with a sturdy frame structure, making it ideal for small plots or land used for recreational purposes.

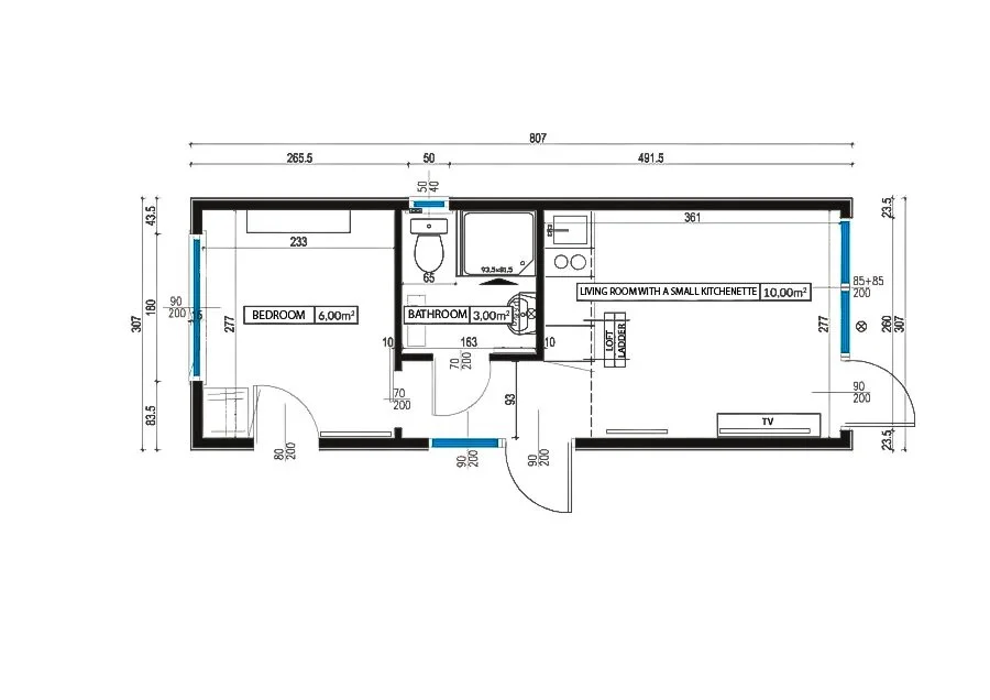
This unit includes a living area with a kitchenette and loft, a bedroom, and a bathroom with a shower. It offers a total area of 22.32 m² and is designed to comfortably accommodate up to four people. An open terrace can be added for an additional cost.

Why Choose ABERFELDY STYLE?

THE HOME IS INSULATED WITH MINERAL WOOL—15 CM IN THE ROOF, 20 CM IN THE FLOOR, AND 10 CM IN THE WALLS. AN OPTIONAL WATER PIPE INSULATION CAN BE ADDED TO PROTECT THE PLUMBING FROM FREEZING. THE GABLE ROOF IS COVERED WITH DURABLE METAL ROOFING TILES.

LIKE OUR OTHER MODELS, THIS ABERFELDY STYLE HOUSE IS PERFECT NOT ONLY FOR FAMILIES LOOKING FOR A PLACE TO RELAX BUT ALSO FOR THOSE INTERESTED IN INCORPORATING IT INTO A VACATION RESORT SETTING.

technical specification

Building characteristics

  • Timber-frame construction, built on a wooden truss, insulated with mineral wool (λ 0.033)

  • Modern form with a gable roof covered with standing seam metal

  • Ideal recreational home for year-round use

  • Single-story house with a mezzanine, intended for a 2-4 person family

  • Living room with a small kitchenette, bedroom, mezzanine, and a small bathroom with a monolithic shower

  • Turnkey finished home, with the possibility of furnishing and customization to individual preferences

floor plan

specificationS

pricing and options

from £53,400 (no vat on this property)

standard

LIVING ROOM:

  • Durable vinyl flooring

  • Access ladder to loft area

  • Windows as per design plan

  • Installed lighting fixtures

BEDROOM:

  • Vinyl floor finish

  • Sliding door for space-saving access

  • Loft area, finished with decorative cladding

KITCHEN:

  • Vinyl flooring

  • Optional kitchen setup

BATHROOM:

  • Walk-in shower

  • Toilet

  • Modern faucet

  • Wooden door

  • Vinyl flooring

INSTALLATIONS:

  • Plumbing system

  • Electrical setup with halogen light points

additional options (extra fee):

APPLIANCES & FEATURES:

  • 30L electric water heater

  • 50L electric water heater

  • Refrigerator

  • Built-in refrigerator

  • Built-in dishwasher

  • Kitchen extractor hood

  • Two-burner electric cooktop

  • Induction cooktop

  • Kitchenette

  • Gas central heating system with a boiler

  • 32" TV

  • Electric oven

  • Standard electric heater

  • Energy-efficient electric heater

  • Electric WC heater

  • Pipe heating system

OPTIONAL UPGRADES & EXTERIOR:

  • Karadeco Vox exterior cladding (additional cost)

  • Vertical wood cladding for the façade

  • Triangular gable window

  • Premium kitchen upgrade

FURNITURE & FURNISHINGS:

  • Bunk bed with mattresses (2x 80x200 cm)

  • Double bed with mattress (140x200 cm)

  • Bedroom wardrobe

  • Loft mattress (160 cm wide)

  • Dining table with 4 chairs

  • Convertible sofa

ENCLOSED, YOU WILL FIND THE DETAILED TECHNICAL SPECIFICATIONS OF THE ABERFELDY STYLE HOME. SHOULD YOU HAVE ANY QUESTIONS, WE ARE AT YOUR DISPOSAL. WE WOULD BE HAPPY TO PREPARE AN INDIVIDUALISED OFFER TAILORED TO YOUR NEEDS.

VIEW OUR ABERFELDY STYLE BROCHURE

WE INVITE YOU TO CONTACT US AND VISIT OUR WEBSITE TO LEARN MORE ABOUT HIGHLANDER AND OTHER PROJECTS.

CONTACT US
Previous
Previous

Summer House - Aviemore Style

Next
Next

Dutch Mobile Home - Ayr Style